Este projeto de paisagismo foi idealizado tendo como principais objetivos a
transformação da paisagem do local, de forma com que fosse possível uma
melhoria cênica, ambiental e microclimática; a interação com a arquitetura,
pretendendo a suavização das linhas do bloco arquitetônico e a criação de uma
atmosfera agradável e saudável; e a integração do jardim com as propriedades
naturais da região, buscando a criação de composições paisagísticas tropicais,
contendo plantas nativas e autóctones, adaptadas às condições lá observadas,
criando um jardim vigoroso e repleto de belas florações e com as mais variadas
texturas.
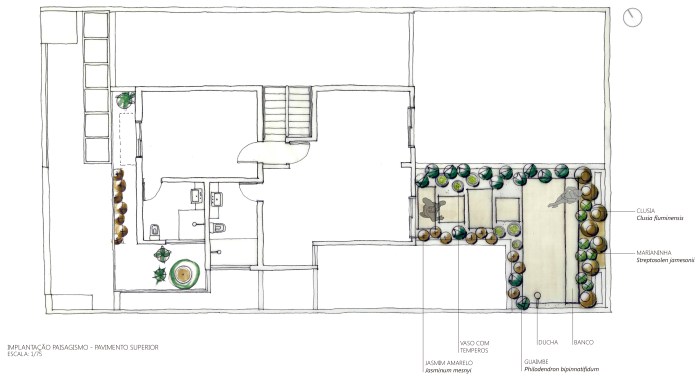
Cada unidade paisagística ou área de permanência foi trabalhada de modo
com que fossem aproveitados as suas vocações e formas de utilização. Na
entrada, a intenção foi a de suavização do muro, com arranjos semelhantes em
ambos os lados. O jardim lateral faz com que a vista seja sempre para uma
densa composição de plantas, trazendo vida para toda a casa. Então, no jardim
principal foi proposta uma continuidade do piso do interior da casa, que se
desfaz e dá lugar á área verde mais importante do projeto, onde se observa o
Ipê Branco (Tabebuia roseo-alba) e um grande módulo de paisagismo vertical,
que condiciona a área de permanência. Já na cobertura, a intenção foi a de
criação de um jardim mais intimista e bastante volumoso, além de um pequeno
jardim funcional.

foto: R. Bordigoni

foto: R. Bordigoni

foto: R. Bordigoni

foto: R. Bordigoni

foto: R. Bordigoni

foto: R. Bordigoni

foto: R. Bordigoni

foto: R. Bordigoni

foto: R. Bordigoni

foto: R. Bordigoni

foto: R. Bordigoni

foto: R. Bordigoni

foto: R. Bordigoni

foto: R. Bordigoni

foto: R. Bordigoni

foto: R. Bordigoni

foto: R. Bordigoni




conclusão projeto: 2017
conclusão execução: 2017
local: São Paulo-SP
arquitetura: Galeria Arquitetos