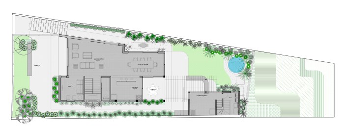
Projeto paisagístico que engloba condicionamento da paisagem, jardim sobre laje e tratamento paisagístico de intervenção geotécnica para estabilização de talude. Utilizou-se de vegetação tropical autóctone.

foto: Casa e Jardim (Edu Castello/Editora Globo)

foto: Casa e Jardim (Edu Castello/Editora Globo)

foto: Casa e Jardim (Edu Castello/Editora Globo)

foto: Casa e Jardim (Edu Castello/Editora Globo)

foto: Casa e Jardim (Edu Castello/Editora Globo)

foto: Casa e Jardim (Edu Castello/Editora Globo)

conclusão projeto: 2010
conclusão execução: 2011
local: São Paulo-SP
arquitetura: Terra e Tuma