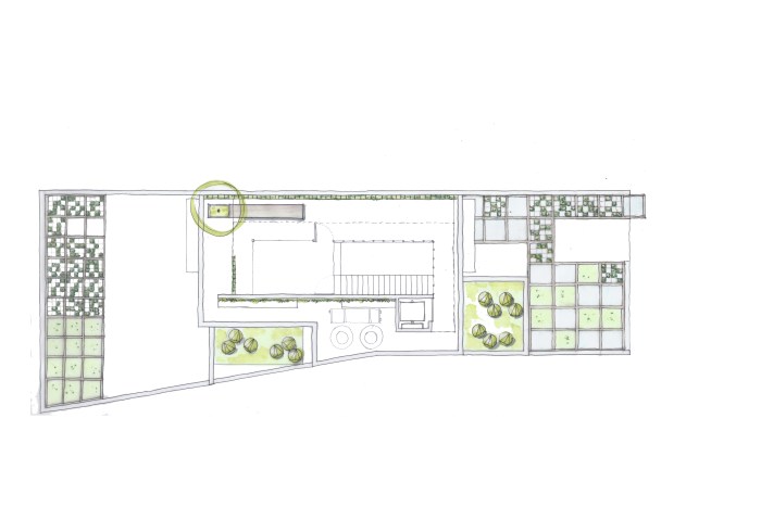
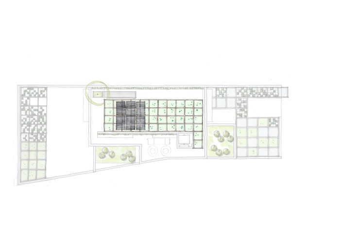
O projeto paisagístico buscou, além da beleza cênica e do condicionamento da paisagem, a criação de um sistema ecogênico coerente com sua localização e o aproveitamento dos elementos florísticos pré-existentes na área, prezando pela sustentabilidade ambiental e a interligação da área com os raros remanescentes florestais da região.
Tendo como bioma correspondente a Mata Atlântica e como microambiente local um Vale Hidromórfico, em decorrência de sua localização geográfica e relevo respectivamente, buscou-se com a composição dos arranjos florísticos propostos a criação de uma ilha de conservação de biodiversidade vegetal em meio antrópico, ou seja, a criação de um perfil paisagístico que além de servir à estética, tem também virtudes conservacionistas.
A escolha das espécies vegetais de porte arbóreo teve como objetivo aproveitar os elementos já existentes na área e trazer outros afim de se compor uma frase paisagística que tenha consonância às teorias de composição de fragmentos florestais, conhecida como sucessão vegetacional. Desta forma, como representante do estrato pioneiro tem-se a Embaúba, seguida pala Pitangueira e pela Jabuticabeira, representantes dos estratos secundário inicial e tardio, respectivamente. E por fim, a Palmeira Jussara, uma representante do estrato clímax do bioma correspondente e uma espécie na lista das ameaçadas de extinção, em decorrência do extrativismo desmedido. A Romãzeira que já floriava o lote desde a sua aquisição foi mantida, por apresentar uma bela conformação e ser uma planta com muitas propriedades gastronômicas e medicinais, recebendo assim um lugar de destaque escultórico no projeto.
Com esta composição arbórea, o microclima criado no sub-bosque tende a apresentar as características de uma mata úmida, com luminosidade filtrada e temperaturas amenas, sendo estas as condições ideais para a criação de composições paisagísticas de estrato herbáceo com o que ha de mais exuberante dentre as plantas tropicais, tanto nativas quanto autóctones, estando disposta em canteiros, de forma epífita, em módulos paisagísticos verticais ou sobre tetos verdes.

foto: Pedro Kok

foto: Pedro Kok

foto: Pedro Kok

foto: Pedro Kok

foto: Pedro Kok

foto: Pedro Kok

foto: Pedro Kok

foto: Pedro Kok

foto: Pedro Kok

foto: Pedro Kok

foto: Pedro Kok

foto: Pedro Kok

foto: Pedro Kok

foto: Pedro Kok

foto: Pedro Kok

foto: Pedro Kok

foto: Pedro Kok

foto: Pedro Kok









conclusão projeto: 2016
conclusão execução: 2017
local: São Paulo-SP
arquitetura: Gil Mello Arquitetura