Projeto vencedor do Concurso para a sede da unidade do SESC em Limeira.



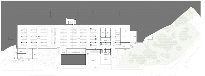
A nova unidade do SESC em Limeira será um conjunto de aproximadamente 17 mil metros quadrado formado por um embasamento de concreto onde se apoia uma barra em estrutura metálica. Esta configuração proporciona uma interação dinâmica entre os diversos programas do equipamento, além de se adaptar à topografia do terreno, respeitando os atuais fluxos entre bairro e avenida.
Esse partido de projeto resultou da adoção das seguintes diretrizes: a) articular a área de convivência com a passagem existente entre bairro e avenida formando uma praça de chegada, como um espaço complementar ao programa original, que acolhe os visitantes e distribui todos os usos e programas da nova unidade; b) adaptar o edifício ao terreno de forma a potencializar o uso e acesso aos programas do novo conjunto; c) construir um edifício capaz de inaugurar um marco visual na paisagem local sem agredir a atual configuração espacial do bairro.
Dessa forma, a nova unidade do SESC em Limeira deverá ser uma referência urbana. Um edifício preciso marcado por sua austeridade construtiva, pautada pela redução de ações construtivas e pela busca de expressividade dos materiais, tornando a arquitetura mais econômica e resistente.











O projeto de paisagismo foi idealizado com o objetivo de condicionamento cênico e microambiental das áreas ajardináveis da edificação do SESC Limeira, seguindo as vocações conservacionistas do local, onde é notória a necessidade de integração ambiental com os remanescentes vegetacionais das intermediações e, mais amplamente, integração com remanescentes florestais do bioma correspondente, a Mata Atlântica e suas fases transicionais para o Cerrado.
As composições florísticas propostas foram inspiradas no meio natural, sendo contempladas apenas espécies nativas e buscando o propósito de criação de ilhas de conservação do patrimônio biológico e socioambiental da região, fazendo com que, além de um jardim que compõe uma paisagem própria dos remanescentes naturais da região, seja também possível a implementação de atividade de educação ambiental e estudo do meio nas dependências do SESC, com a criação de canteiros experimentais e um pequeno viveiro voltado para cursos e oficinas. Nestes canteiros também estão contempladas áreas para manejo de pequenos núcleos agroflorestais como um fomento a possíveis práticas de agricultura urbana.
Um dos pontos fortes da integração do paisagismo ao edifício é o plantio de Mirtáceas que marca e atravessa o eixo de acesso principal. Jabuticabeiras, Pitangueiras e Cerejeiras do Rio Grande qualificam esta área do interior do edifício se tornando não apenas de passagem, mas também de permanência. A escolha dessa família botânica se deu pela sua beleza formal e pelo seu desenvolvimento em sub-bosque, ou seja, são árvores que se desenvolvem em ambiente interno quando bem iluminado.
A existência da área de preservação permanente limítrofe foi um ponto positivo e enfaticamente considerado na tomada de decisão quanto aos aspectos técnicos de modulação e volumetria de vegetação e sucessão trófica dos estratos arbustivo e arbóreo do projeto de paisagismo. Entrecortando estes módulos paisagísticos, a proposta é a de criação de caminhos e áreas de permanência que contenham material explicativo e iluminação direcionada, a fim de esclarecer e elucidar o usuário quanto a estes temas. A escolha das espécies vegetais foi feita com base em inventários técnicos florestais de remanescentes presentes na região.
conclusão projeto: 2017
local: Limeira SP
arquitetura: GRUPO SP, JPG.ARQ e Pedro Mendez da Rocha
equipe técnica: Autores: Alvaro Puntoni, João Sodré, José Paulo Gouvêa e Pedro Mendes da Rocha. Colaboradores: André Britto, Bruno Satin, Caio Ferraz, Fernanda Carlovich, Kamal Yazbek, Miguel Meister e Paola Ornaghi. Paisagismo: Gabriella Ornaghi, Bianca Vasone, Lilian Dazzi e Rodrigo Bordigoni (engenheiro agrônomo). Consultoria em Estruturas: Miguel Maratá (engenheiro calculista)